LGMG AR65JE MOBILE ELEVATING WORK PLATFORMS PARTS CATALOG A2012J0WDQ0CE7004 08
|
序号 |
零件代号 |
名称 |
是否配件 |
数量 |
备注 |
|
|
Key |
Part No. |
Description |
Spare parts Y/N |
Qty |
Remarks |
|
|
1 |
25220015501 |
轴套50*58*50 |
Axle sleeve |
Y |
2 |


|
序号 |
零件代号 |
名称 |
是否配件 |
数量 |
备注 |
|
|
Key |
Part No. |
Description |
Spare parts Y/N |
Qty |
Remarks |
|
|
1 |
25220045061 |
基本臂总成 |
Assemble |
Y |
1 |
|
|
2 |
4015010280 |
垫圈GB97.1-8flZnyc-480 |
Washer gb97.1-8flznyc-480 |
Y |
3 |
|
|
3 |
4013010383 |
簧片螺母QC339-M8flZnyc-8-480 |
Reed nut qc339-m8flznyc-8-480 |
Y |
3 |
|
|
4 |
4011010711 |
螺栓GB5783-M8*20flZnyc-8.8-480 |
Bolt gb5783-m8*20flznyc-8.8-480 |
Y |
3 |
|
|
5 |
25220047111 |
盖板焊合 |
Cover plate weldment |
Y |
1 |
|
|
6 |
25220042852 |
行程开关护罩 |
Plate |
Y |
1 |
|
|
7 |
4014010127 |
螺钉GB70.1-M5*10flZnyc-8.8-480 |
Screw gb70.1-m5*10flznyc-8.8-480 |
Y |
8 |
|
|
8 |
4015010345 |
垫圈GB96.1-5flZnyc-480 |
Washer gb96.1-5flznyc-480 |
Y |
8 |
|
|
9 |
4015010339 |
垫圈GB97.1-10flZnyc-300HV-480 |
Washer gb97.1-10flznyc-300hv-480 |
Y |
13 |
|
|
10 |
25200000641 |
插销 |
Pin,10*70 |
Y |
2 |
|
|
11 |
4011010707 |
螺栓GB5783-M10*30flZnyc-8.8-480 |
Bolt gb5783-m10*30flznyc-8.8-480 |
Y |
1 |
|
|
12 |
25220044551 |
盖板胶条 |
Edge protector |
Y |
1 |
|
|
13 |
25220040231 |
轴35*265 |
Axle |
Y |
1 |
|
|
14 |
25220045071 |
二节臂总成 |
1st boom assembly |
Y |
1 |
|
|
15 |
25220047151 |
走线梁支撑板焊合 |
Wiring beam supt plate weldment |
Y |
1 |
|
|
16 |
4011010748 |
螺栓GB5783-M10*20flZnyc-8.8-480 |
Bolt gb5783-m10*20flznyc-8.8-480 |
Y |
3 |
|
|
17 |
4011010979 |
螺栓GB5783-M12*40flZnyc-8.8-480 |
Bolt gb5783-m12*40flznyc-8.8-480 |
Y |
1 |
|
|
18 |
4015010340 |
垫圈GB97.1-12flZnyc-300HV-480 |
Washer gb97.1-12flznyc-300hv-480 |
Y |
1 |
|
|
19 |
25220000611 |
插销 |
Pin φ33-70 |
Y |
1 |
|
|
20 |
25220047661 |
轴50*210 |
Axle |
Y |
1 |
|
|
21 |
4011010727 |
螺栓GB5783-M10*35flZnyc-8.8-480 |
Bolt gb5783-m10*35flznyc-8.8-480 |
Y |
5 |
|
|
22 |
25220042921 |
轴35*230 |
Axle |
Y |
1 |


|
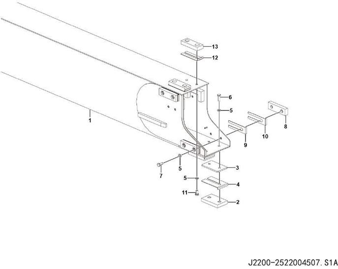
序号 |
零件代号 |
名称 |
是否配件 |
数量 |
备注 |
|
|
Key |
Part No. |
Description |
Spare parts Y/N |
Qty |
Remarks |
|
|
23 |
4011010706 |
螺栓GB5783-M10*40flZnyc-8.8-480 |
Bolt gb5783-m10*40flznyc-8.8-480 |
Y |
4 |
|
|
24 |
4016010174 |
开口销GB91-1.6*16flZnyc-Q235A-480 |
Pin gb91-1.6*16flznyc-q235a-480 |
Y |
1 |
|
|
25 |
25220027831 |
压板 |
Plate |
Y |
4 |
|
|
26 |
25220047251 |
伸缩油缸调整垫片1mm |
Telescopic cylinder adjust shim |
Y |
8 |
|
|
27 |
25220042862 |
角度传感器护罩 |
Plate |
Y |
1 |
|
|
28 |
4015010323 |
挡圈JB4342-35flZnyc-65Mn-480 |
Snap ring jb4342-35flznyc-65mn-480 |
Y |
2 |
|
|
29 |
25220006662 |
垫圈35-2 |
Washer, 35*2 |
Y |
2 |
|
|
30 |
25220006652 |
轴35*215 |
Shaft, 35*215 |
Y |
1 |
|
|
31 |
25220047101 |
防尘压板 |
Dustproof pressing plate |
Y |
2 |
|
|
32 |
4013010388 |
螺母GB6177-M6flZnyc-8-480 |
Nut gb6177-m6flznyc-8-480 |
Y |
12 |
|
|
33 |
4011010757 |
螺栓GB16674-M6*20flZnyc-8.8 |
Bolt gb16674-m6*20flznyc-8.8 |
Y |
12 |
|
|
34 |
25220042882 |
侧防尘橡胶板 |
Side dustproof rubber plate |
Y |
2 |


|
序号 |
零件代号 |
名称 |
是否配件 |
数量 |
备注 |
|
|
Key |
Part No. |
Description |
Spare parts Y/N |
Qty |
Remarks |
|
|
1 |
25220047222 |
二节臂合件 |
1st boom assembly |
N |
1 |
|
|
2 |
25220007631 |
滑块76-17.5 |
Slider 76-17.5 |
Y |
2 |
|
|
3 |
25220007611 |
76滑块垫板6mm |
76 slider pad 6mm |
Y |
2 |
|
|
4 |
25220010711 |
滑块垫板76-120-2 |
Slider pad 76-120-2 |
Y |
2 |
|
|
5 |
4015010339 |
垫圈GB97.1-10flZnyc-300HV-480 |
Washer gb97.1-10flznyc-300hv-480 |
Y |
16 |
|
|
6 |
4011010707 |
螺栓GB5783-M10*30flZnyc-8.8-480 |
Bolt gb5783-m10*30flznyc-8.8-480 |
Y |
4 |
|
|
7 |
4011010722 |
螺栓GB5783-M10*25flZnyc-8.8-480 |
Bolt gb5783-m10*25flznyc-8.8-480 |
Y |
8 |
|
|
8 |
25220018571 |
滑块 |
Block |
Y |
4 |
|
|
9 |
25220045091 |
调整垫片 |
Plate |
Y |
4 |
|
|
10 |
25220002821 |
垫片 |
Shim, for fixing support plate |
Y |
4 |
|
|
11 |
4011010748 |
螺栓GB5783-M10*20flZnyc-8.8-480 |
Bolt gb5783-m10*20flznyc-8.8-480 |
Y |
4 |



|
序号 |
零件代号 |
名称 |
是否配件 |
数量 |
备注 |
|
|
Key |
Part No. |
Description |
Spare parts Y/N |
Qty |
Remarks |
|
|
1 |
25220044243 |
基本臂合件 |
Base boom assembly |
Y |
1 |
|
|
2 |
25220044461 |
滑块调整垫板5mm |
Plate |
Y |
2 |
|
|
3 |
25220003151 |
滑块垫板45-2 |
Slider pad 45-2 |
Y |
6 |
|
|
4 |
25220003141 |
滑块垫板45-1 |
Slider pad 45-1 |
Y |
6 |
|
|
5 |
25220003191 |
滑块45-23 |
Slider 45-23 |
Y |
6 |
|
|
6 |
4015010339 |
垫圈GB97.1-10flZnyc-300HV-480 |
Washer gb97.1-10flznyc-300hv-480 |
Y |
16 |
|
|
7 |
4011010707 |
螺栓GB5783-M10*30flZnyc-8.8-480 |
Bolt gb5783-m10*30flznyc-8.8-480 |
Y |
8 |
|
|
8 |
4011010722 |
螺栓GB5783-M10*25flZnyc-8.8-480 |
Bolt gb5783-m10*25flznyc-8.8-480 |
Y |
8 |
|
|
9 |
25220007631 |
滑块76-17.5 |
Slider 76-17.5 |
Y |
2 |
|
|
10 |
25220007641 |
76滑块垫板3mm |
76 slider pad 3mm |
Y |
2 |
|
|
11 |
25220010711 |
滑块垫板76-120-2 |
Slider pad 76-120-2 |
Y |
2 |

