SINOMACH CHANGLIN 936X wheel loader parts catalog 32
车身及附件(I)
Vehicle Body and Accessory(I)

车身及附件(I)
Vehicle Body and Accessory(I)
|
序号 No. |
零 件 代 号 Part No. |
版本 Ver. |
名 称 Part Name |
数量 Q’ty |
适用车号 Suit Num. |
选装 Cho |
|
|
1 |
936.17.10A.1 |
1 |
前右挡泥板 |
R front dishboard |
1 |
00005- |
|
|
2 |
Z30.17M.10B.2 |
1 |
板 |
Plate |
2 |
00005- |
|
|
3 |
Z30.17M.10B.3 |
1 |
板 |
Plate |
2 |
00165- |
|
|
4 |
B-G00097B-00023 |
1 |
垫圈8ZnD |
Washer |
12 |
00165- |
|
|
5 |
B-G000930-00017 |
1 |
垫圈8 |
Washer |
12 |
00005- |
|
|
6 |
B-G057830-00037 |
1 |
螺栓 M8×35 ZnD |
Bolt |
8 |
00165- |
|
|
7 |
B-G057830-00010 |
1 |
螺栓M10x30ZnD |
Bolt |
6 |
00165- |
|
|
8 |
B-G00097B-00002 |
1 |
垫圈10ZnD |
Washer |
6 |
00165- |
|
|
9 |
Z30H.17C.2A |
1 |
右前大灯支架 |
R front lamp supporting |
1 |
00165- |
|
|
10 |
936.17.20M |
1 |
右反光镜支座 |
R reflector supporting |
1 |
00005- |
|
|
11 |
B-G057830-00139 |
1 |
螺栓M8×20ZnD |
Bolt |
8 |
00005- |
|
|
12 |
936.17.19M |
1 |
左反光镜支座 |
L reflector supporting |
1 |
00005- |
|
|
13 |
W-09-00022 |
1 |
室外反光镜 |
Viewfinder |
2 |
00005- |
|
|
14 |
Z30H.17C.1A |
1 |
左前大灯支架 |
L front lamp supporting |
1 |
00005- |
|
|
15 |
936.17.17A |
1 |
随机备件箱 |
Spare part tool box |
1 |
00005- |
|
|
16 |
B-G000930-00001 |
1 |
垫圈10 |
Washer |
6 |
00165- |
|
|
17 |
B-G057830-00016 |
1 |
螺栓M10x45ZnD |
Bolt |
6 |
00005- |
|
|
|
|||||||
|
|
|||||||
车身及附件(II)
Vehicle Body and Accessory(II)

车身及附件
(II)Vehicle Body and Accessory(II)
|
序号 No. |
零 件 代 号 Part No. |
版本 Ver. |
名 称 Part Name |
数量 Q’ty |
适用车号 Suit Num. |
选装 Cho |
|
|
1 |
936.17.3M |
1 |
梯子 |
Ladder |
2 |
00005- |
|
|
2 |
B-G057830-00010 |
1 |
螺栓M10x30ZnD |
Bolt |
10 |
00005- |
|
|
3 |
B-G00097B-00002 |
1 |
垫圈10ZnD |
Washer |
18 |
00165- |
|
|
4 |
B-G000930-00001 |
1 |
垫圈10 |
Washer |
18 |
00165- |
|
|
5 |
B-G057830-00016 |
1 |
螺栓M10x45ZnD |
Bolt |
8 |
00005- |
|
|
6 |
936.17.5M |
1 |
右踏板 |
Right pedal |
1 |
00165- |
|
|
7 |
B-G057830-00034 |
1 |
螺栓M12×30ZnD |
Bolt |
7 |
00165- |
|
|
8 |
B-G000930-00003 |
1 |
垫圈12 |
Washer |
7 |
00165- |
|
|
9 |
B-G00097B-00004 |
1 |
垫圈12ZnD |
Washer |
7 |
00165- |
|
|
10 |
936.17.12M |
1 |
右上前扶手 |
R front handrail |
1 |
00165- |
|
|
11 |
Z30.17M.8 |
1 |
后扶手 |
handrail |
2 |
00165- |
|
|
12 |
936.17.16M |
1 |
右上后扶手 |
R rear handrail |
1 |
00165- |
|
|
13 |
936.17.8M |
1 |
右踏板后支撑 |
R rear support |
1 |
00165- |
|
|
14 |
936.17.6L |
1 |
踏板前支撑 |
Rront support |
2 |
00165- |
|
|
15 |
B-G061700-00003 |
1 |
螺母10ZnD |
Nut |
4 |
00165- |
|
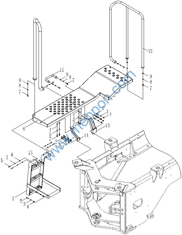
车身及附件(III)
Vehicle Body and Accessory(III)

车身及附件(III)
Vehicle Body and Accessory(III)
|
序号 No. |
零 件 代 号 Part No. |
版本 Ver. |
名 称 Part Name |
数量 Q’ty |
适用车号 Suit Num. |
选装 Cho |
|
|
1 |
936.17.3M |
1 |
梯子 |
Ladder |
2 |
00005- |
|
|
2 |
B-G057830-00010 |
1 |
螺栓M10x30ZnD |
Bolt |
10 |
00005- |
|
|
3 |
B-G00097B-00002 |
1 |
垫圈10ZnD |
Washer |
18 |
00165- |
|
|
4 |
B-G000930-00001 |
1 |
垫圈10 |
Washer |
18 |
00165- |
|
|
5 |
B-G057830-00016 |
1 |
螺栓M10x45ZnD |
Bolt |
8 |
00005- |
|
|
6 |
936.17.8M |
1 |
左踏板 |
Right pedal |
1 |
00165- |
|
|
7 |
B-G057830-00034 |
1 |
螺栓M12×30ZnD |
Bolt |
7 |
00165- |
|
|
8 |
B-G000930-00003 |
1 |
垫圈12 |
Washer |
7 |
00165- |
|
|
9 |
B-G00097B-00004 |
1 |
垫圈12ZnD |
Washer |
7 |
00165- |
|
|
10 |
936.17.11M |
1 |
左上前扶手 |
R front handrail |
1 |
00165- |
|
|
11 |
Z30.17M.8 |
1 |
后扶手 |
handrail |
2 |
00165- |
|
|
12 |
936.17.15M |
1 |
左上后扶手 |
L rear handrail |
1 |
00165- |
|
|
13 |
936.17.7M |
1 |
左踏板后支撑 |
L rear support |
1 |
00165- |
|
|
14 |
936.17.6L |
1 |
踏板前支撑 |
L ront support |
2 |
00165- |
|
|
15 |
B-G061700-00003 |
1 |
螺母10ZnD |
Nut |
4 |
00165- |
|
